-
9
-
4
-
5
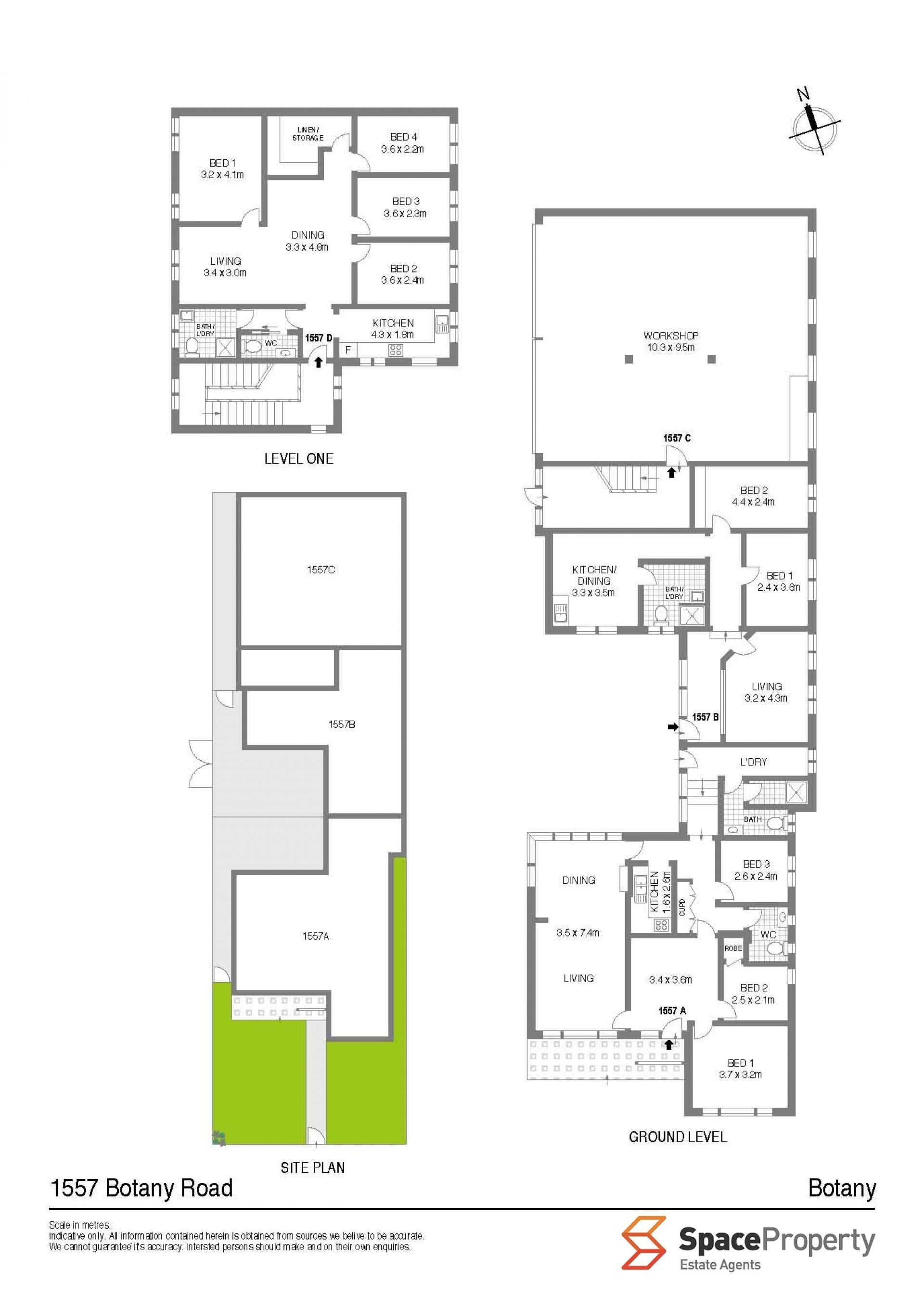
1557 Botany Road, BOTANY NSW 2019
2X Buildings, 4 x tenants | SOLD BY CALEB POKA
Located just a short walk to Sir Joseph Banks Park, Botany Pools, Booralee Park and the many local shops on offer along Botany Rd.
Large 493sqm corner block
Corner position- Botany and Tenterden Rd
Currently four separate tenants, spread risk investment
1:1 FSR,B4 Zoning and 10M Height Limit
Two separate buildings- Commercial workshop + 3 bedroom residence upstairs; Freestanding 3 Bedroom 2 Bath fibro house; 2 Bedroom 1 bathroom (Sectioned off part of house)
Fully leased income circa $100K P/A
Potential to subdivide STCA
Note that part of the residential building building has recently been damaged by a fire.
Large 493sqm corner block
Corner position- Botany and Tenterden Rd
Currently four separate tenants, spread risk investment
1:1 FSR,B4 Zoning and 10M Height Limit
Two separate buildings- Commercial workshop + 3 bedroom residence upstairs; Freestanding 3 Bedroom 2 Bath fibro house; 2 Bedroom 1 bathroom (Sectioned off part of house)
Fully leased income circa $100K P/A
Potential to subdivide STCA
Note that part of the residential building building has recently been damaged by a fire.
