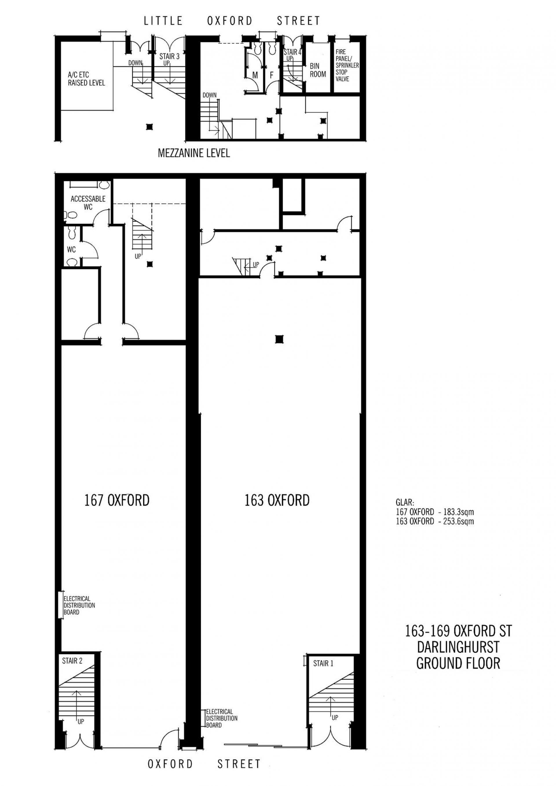
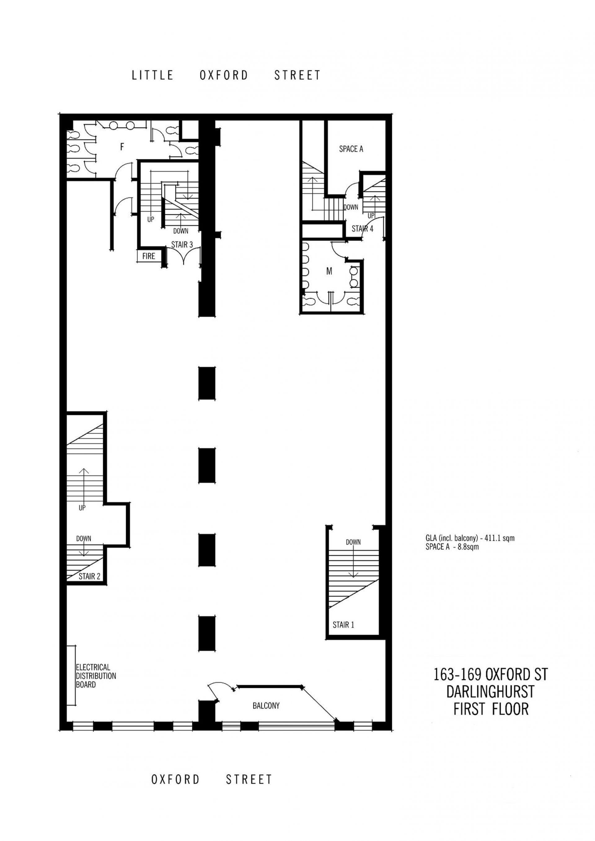
shop/163 Oxford Street, Darlinghurst NSW 2010
Retail with 5 m plus street frontage
This rare offering is a great opportunity for users requiring clear span space
Features
- 240 sqm*
- Excellent frontage
- Open span space
- Highly exposed
Features
- 240 sqm*
- Excellent frontage
- Open span space
- Highly exposed
