Level 2/1/84 Union, Pyrmont NSW 2009
Renovated Creative Office Near Darling Harbour
Located moments to Darling Harbour, The Star and Union Square.
Features
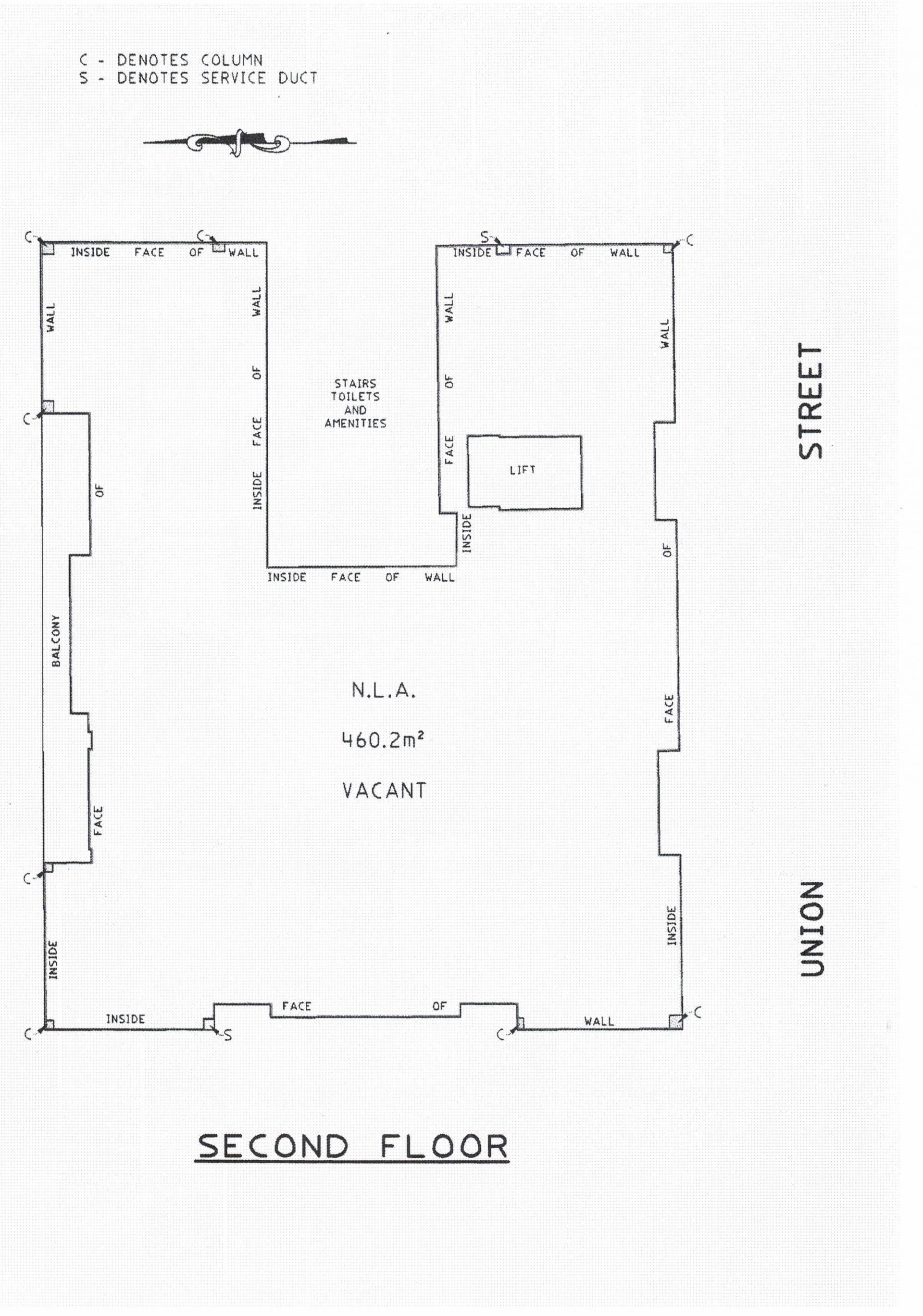
* Various sizes of 52m2, 150m2 Or 202m2
* Rent to be advised
* Suitable to work & live or sole office
* Newly renovated
Features
* Various sizes of 52m2, 150m2 Or 202m2
* Rent to be advised
* Suitable to work & live or sole office
* Newly renovated
